

【产品简介】
全不锈钢旋振筛整机采用304/316不锈钢材质抛光而成,干净卫生,耐酸碱腐蚀,防锈蚀,密封件与弹跳球选用硅胶材质,无污染,可以专门用在食品、医药等对卫生要求的行业筛分含量较低的大颗?;蛐】帕?或过滤各类浆液中的非溶性物质.
优势
①不锈钢材质,干净卫生、无毛刺
②耐腐蚀、耐高温、防锈蚀
③全封闭结构,无粉尘污染
免费获取报价
全国统一销售热线
(全)不锈钢旋振筛筛分玉米颗粒——成品粒形均匀,可筛至500目
不锈钢旋振筛筛分面粉——304不锈钢材质抛光而成,无毛刺,更卫生增
全不锈钢旋振筛整机采用不锈钢材质内外抛光,弹簧外围加不锈钢防护罩,密封件及挡球环、弹跳球等采用食品、医药行业要求的硅胶材质,干净卫生、防锈蚀、能抵抗酸碱性物料的侵蚀??蚩梢圆捎眉忧啃兔芊饨峁?,使筛框与网架完全密封,减少筛分过程中的粉尘污染及原料交叉污染。

大汉全不锈钢旋振筛筛分细至500目或0.028mm,过滤可达5微米,“大汉”旋振筛系列产品同时配备专门的筛网清理装置,通过筛分过程中撞击筛网可进行清洁作用,降低堵网率,提高筛分精度和产量,“大汉”具备特殊型号制造的能力,能满足用户个性化筛分需求。


1、筛机经过内外抛光打磨处理后更不易生锈,良好的清理性能可避免物料受到污染。
2、筛分细至500目或0.028mm,过滤可达5微米。
3、增加硅胶球清网装置,可以避免筛孔被堵塞。
4、可安装1-5层筛网,一次操作可获得2-6种不同规格尺寸的成品物料。
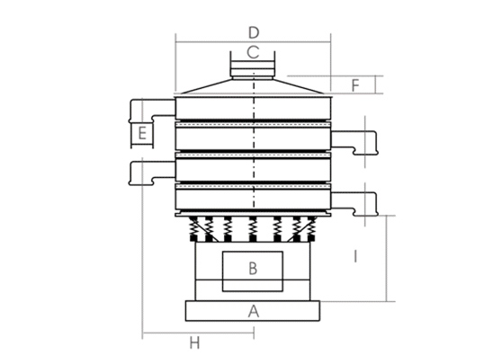
全不锈钢旋振筛从上到下外部结构图依次分为:进料口-防尘盖-小束环-上框-细网-粗网-筛架-中框-胶球-冲孔板-底框-出料口-大束环-弹簧-机座。
内部振动体的结构图:加重片-上部重锤-振动本体-振动马达-下部重锤



| 型 号 |
DH-600 |
DH-800 |
DH-1000 |
DH-1200 |
DH-1500 |
DH-1800 |
DH-2000 |
| 直径mm |
Φ600 |
Φ800 |
Φ1000 |
Φ1200 |
Φ1500 |
Φ1800 |
Φ2000 |
| 筛网面积m |
0.24 |
0.45 |
0.67 |
1.0 |
1.6 |
2.43 |
3.01 |
| 筛网规格(目) |
2-500 |
||||||
| 进料粒度mm |
<Φ10 |
<Φ15 |
<Φ20 |
<Φ30 |
|||
| 振次rpm |
1500 |
1500 |
1500 |
1500 |
1500 |
1500 |
1500 |
| 有效筛面直mm |
Φ560 |
Φ760 |
Φ930 |
Φ1130 |
Φ1430 |
Φ1760 |
Φ1960 |
| 层数 |
1-5 |
||||||
| 功率Kw |
0.25 |
0.55 |
0.75 |
1.1 |
1.5 |
2.2 |
3 |




食品行业:糖粉、淀粉、食盐、米粉、奶粉、豆浆、蛋粉、酱油、果汁等。
医药行业:中药粉、中药液、西药粉、西药液、中西药颗粒、药丸等。
化工行业:树脂、涂料、工业药品、化妆品、油漆、中药粉等。
金属、冶金矿业:铝粉、铅粉、铜粉、矿石、合金粉、焊条粉末、二氧化锰、电解铜粉、电磁性材料、研磨粉、耐火材料、高岭土、石灰、氧化铝、重质碳酸钙、石英砂等。
公害处理:废油、废水、染整废水、助剂、活性碳等。

采用304/316L不锈钢材质制成的筛分设备,主要用于筛分一些卫生级别高的物料...
我们厂家的不锈钢旋振筛采用优质的SUS304不锈钢材质,内外经过了严格的抛光...
由于全不锈钢振动筛生产厂家众多,这里就简单以新乡大汉振动机械有限公司为例...
不锈钢振动筛可以按照用户筛分物料的要求设计成接触部分为不锈钢材质和整机为...
奶粉的筛选离不开振动筛设备,一般厂家建议选择不锈钢旋振筛...
筛分面粉一般选择的振动筛是不锈钢旋振筛,而其价格一直是用...
大汉医药不锈钢旋振筛价格: 500045000 医药不锈钢旋振筛整机采...
不锈钢旋振筛采用304不锈钢材质,耐磨性、耐腐蚀性能好,筛分...
Copyright ? 2007-2020 新乡市大汉振动机械有限公司 版权所有
All Rights Reserved 备案序号:豫ICP备09002479号-15